Nowoczesny bliźniak – 4 sypialnie, odbiór XII.2025

Dom (Bliźniak) na sprzedaż
950 000,00 PLN , Pow. 160 m2
Drukuj ofertę
Drukuj ofertę
Typ nieruchomości:
Dom
Powierzchnia:
160 m2
Typ transakcji:
sprzedaż
Liczba pokoi:
5
Lokalizacja:
Banino , Pilotów
Rok budowy:
2025
Piętro:
0 na 1
Numer oferty:
CY_S46
Powierzchnia działki:
501 m2
Cena za m2:
5 937,50 PLN
Zapraszam do zapoznania się z ofertą sprzedaży domu w zabudowie bliźniaczej - BANINO UL. PILOTÓW 29.

Budynek w standardzie deweloperskim, gotowy do własnej aranżacji.

Konstrukcja z podwójną ścianą i dylatacją pomiędzy segmentami zapewnia wysoki komfort akustyczny oraz prywatność.
Przestrzeń zaprojektowana bez skosów na piętrze umożliwia pełne wykorzystanie powierzchni wszystkich pomieszczeń.
Termin odbioru budynku grudzień 2025 roku.

PARAMETRY PODSTAWOWE


  • Powierzchnia użytkowa: 136 m2

  • Powierzchnia całkowita: 160 m2

  • Działka o powierzchni 501 m2, ogrodzona z trzech stron

  • Liczba pokoi: salon + 4 sypialnie + poddasze około 40m2

  • Podjazd, taras, opaska i dojście do budynku z kostki brukowej


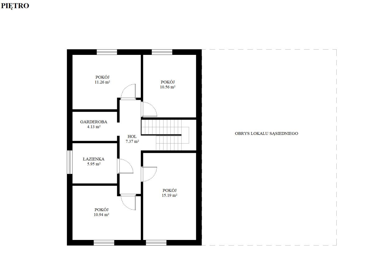
UKŁAD POMIESZCZEŃ
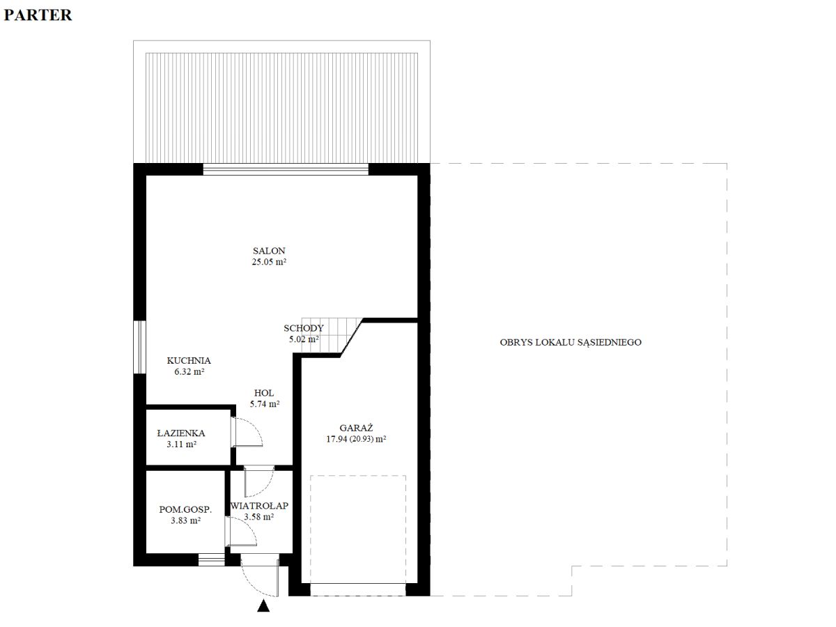
PARTER:


  • Salon z wyjściem na ogród: 25 m²

  • Kuchnia z oknem otwarta na salon: 6,5 m²

  • Łazienka z miejscem na prysznic: 3 m²

  • Pomieszczenie techniczne z pompą ciepła i rekuperatorem

  • Wiatrołap z miejscem na szafę

  • Garaż jednostanowiskowy: 21 m²


PIĘTRO - bez skosów:


  • Pokoje: 15 m², 12 m², 11 m², 11 m²

  • Łazienka 6 m², z oknem

  • Garderoba 4 m²

  • Hol 7,50 m²


POWIERZCHNIA DODATKOWA NAD PIĘTREM
Wysokie poddasze idealne na gabinet lub bawialnie, które z łatwością połączymy z piętrem pełnowymiarowymi schodami.

LOKALIZACJA — UL. PILOTÓW, BANINO


  • Szkoła podstawowa z kompleksem boisk

  • Sklepy i usługi w zasięgu spaceru

  • Autobusy: 126 (Gdańsk Wrzeszcz), Z-tki (PKM Rębiechowo)

  • Ścieżki rowerowe, tereny rekreacyjne

  • Pobliski las — świetne miejsce na spacery i aktywność

  • Szybki dojazd do Trójmiasta, obwodnicy i lotniska

  • Spokojne, rodzinne otoczenie z pełną infrastrukturą blisko domu.



NAJWAŻNIEJSZE ATUTY


  • Świetna lokalizacja

  • Zewnętrzne przesłony okienne - salon i kuchnia żaluzje fasadowe, pozostałe okna rolety

  • Okno w salonie w systemie HST

  • Nowoczesne rozwiązania: ogrzewanie pompą ciepła + rekuperacja

  • Brak skosów - pełna funkcjonalność pomieszczeń

  • Przemyślany i nowoczesny układ

  • Wysoki komfort akustyczny - podwójna ściana + dylatacja


STANDARD WYKOŃCZENIA

Konstrukcja:


  • Fundamenty z bloczków betonowych

  • Ściany nośne z gazobetonu H+H (gr. 24 cm)

  • Strop nad parterem - monolityczny, żelbetowy

  • Strop nad poddaszem - drewniany, obudowany płytami g-k F na ruszcie metalowym, ocieplony wełną mineralną

  • Schody żelbetowe, dwubiegowe

  • Ocieplenie elewacji styropianem (gr. 20 cm)

  • Elewacja wykończona tynkiem silikonowym


Dach:


  • Więźba drewniana

  • Pokrycie dachówką betonową płaską w kolorze Antracyt

  • Ocieplenie wełną mineralną


Stolarka:


  • Okna PCV trzyszybowe z roletami zewnętrznymi

  • Okno w salonie w systemie HST, okno w salonie i kuchni z żaluzją fasadową

  • Drzwi wejściowe antywłamaniowe

  • Brama garażowa segmentowa z napędem elektrycznym


Instalacje:


  • Elektryczna (z osprzętem)

  • Wodno-kanalizacyjna

  • Centralne ogrzewanie z ogrzewaniem podłogowym

  • Instalacja teleinformatyczna

  • Wentylacja: mechaniczna z rekuperacją Vent Clear

  • Źródło ciepła: powietrzna pompa ciepła De Dietrich


Wnętrza:


  • Tynki gipsowe

  • Posadzki betonowe


Media:


  • Przyłącza prądu i wody

  • Zbiornik bezodpływowy (szambo 10 m3), zbiornik na deszczówkę 5 m3.


Oferta z rynku pierwotnego - brak podatku PCC!

Zapraszam do kontaktu w sprawie oferty.

Nasze biuro znajduje się w Baninie, a klucze do nieruchomości są dostępne na miejscu, dzięki czemu prezentację można umówić w dogodnych dla Państwa godzinach.

Planujesz zakup tej nieruchomości, ale musisz najpierw sprzedać swoją?

Z nami to możliwe - sprawnie, bezpiecznie i w pełni komfortowo!

Pomożemy Ci przejść przez cały proces tzw. transakcji wiązanej: od sprzedaży obecnej nieruchomości, aż po zakup tej wymarzonej. Zadbamy o każdy etap, abyś mógł cieszyć się nowym domem bez stresu i za najlepszą cenę.

Skontaktuj się z nami - znajdziemy dla Ciebie idealne rozwiązanie!

Zapraszamy do skorzystania z usług profesjonalnych doradców kredytowych:


  • przygotowanie i porównanie ofert kredytowych z 16 banków - bezpłatnie,

  • analiza zdolności kredytowej,

  • pomoc przy kompletowaniu dokumentów.


OFERTA WYŁĄCZNIE W BIURZE CEBULSCY NIERUCHOMOŚCI.

Biuro Cebulscy Nieruchomości od 2010 roku w Baninie.

POŚREDNIK ODPOWIEDZIALNY ZAWODOWO ZA WYKONANIE ZLECENIA: MAREK CEBULSKI Numer licencji: 16825.

Prezentowana oferta ma charakter informacyjny, nie stanowi oferty handlowej w rozumieniu przepisów prawa. Właścicielem ogłoszenia wraz z jego elementami jest firma pod nazwą Cebulscy Nieruchomości. Wszelkie prawa zastrzeżone.
Adres strony www: https://fdbklechowicz.wykazcen.pl
Nieprawidłowy adres E-mail